重油電站余熱鍋爐的中樞系統——集裝箱撬塊

眾所周知,電腦、手機的“中樞系統”是CPU;那您知道重油電站余熱鍋爐的中樞系統,凱能科技是如何設計得嗎?它是否與電腦端的CPU有異曲同工之妙呢!
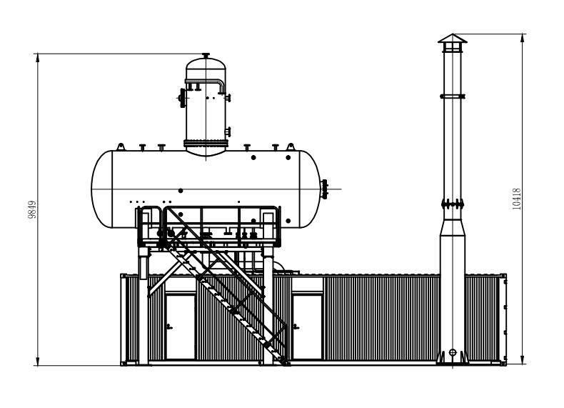
重油電站在東南亞的沿海沿河國家越來越受歡迎,而內燃機使用的重油如何加熱并可以供內燃機燃燒使用,余熱鍋爐的中控及水泵等如何設計,如何在方圓之間發揮作用顯得尤為重要。傳統電站設計,加藥設備需要化水車間,各類水泵需要泵房,電控箱需要控制室等等。針對行業的痛點及需求,凱能科技集思廣益,優化設計,將重油電站余熱鍋爐的中樞系統集成設計成集裝箱撬塊的形式。將高壓水泵、補水泵,啟動鍋爐,余熱鍋爐總控電控箱,加藥系統等集成設計在40尺集裝箱內,減設計院工作量,解用戶運行繁瑣、高成本投入之難。一個箱子將內燃機的燃料加熱系統,余熱鍋爐的補水、加藥系統,控制系統全部解決。電腦的CPU也就是指甲蓋的大小,而40尺的集裝箱相對于整個重油電站的比例與電腦的CPU相同;并且作用也相同;這正是異曲同工之妙。

凱能科技在重油電站的中樞系統的設計已經在孟加拉、柬埔寨等項目成功應用。下面來一起目睹他的真容!
如果您對發電機組余熱鍋爐感興趣,請致電400-100-9636,我們將竭誠為您服務!

![]()
![]()

專注節能環保20年,轉載請注明出處。
產品推薦
同類文章排行
- 工業窯爐煙氣余熱回收,挖掘隱藏的“能源金礦”
- 干熄焦余熱鍋爐:賦能綠色焦化,鑄就多維價值典范
- 內燃機煙氣余熱發電:化工業廢氣為綠色電能
- 余熱鍋爐在發電機組中的關鍵角色與多元用途
- 變廢為寶:焦化爐煙氣余熱回收技術解析
- 玻璃窯爐煙氣余熱利用:亟待挖掘的能源富礦
- 工業硅礦熱爐余熱鍋爐的應用與價值
- 凱能科技余熱鍋爐:多行業節能升級的核心動力
- 鐵合金煙氣余熱回收利用:綠色轉型新引擎
- 工業硅礦熱爐余熱鍋爐:賦能工業硅生產的 “節能利器”













魯公網安備 37028102000404號